Modern Home Design
 A spacious master bath with adjoining walk-in closets and a massage room

Master Bath Remodel

Repurposing a guest apartment

 A spacious master bath with adjoining walk-in closets and a massage room

A spacious master bath with adjoining walk-in closets and a massage room

 An illustration of fluted pilasters requested by the interior designer

An illustration of fluted pilasters requested by the interior designer

 Shop drawings for fabricating the pilasters

Shop drawings for fabricating the pilasters

 Her closet with skylights and a small ceiling dome

Her closet with skylights and a small ceiling dome

 His closet with an adjacent massage therapy room opening onto a veranda

His closet with an adjacent massage therapy room opening onto a veranda

 The schematic design was a collaborative effort involving the client, her interior designer, the custom cabinetry designer, and myself

The schematic design was a collaborative effort involving the client, her interior designer, the custom cabinetry designer, and myself

 With the design resolved, beginning reconstruction and framing plans had top priority

With the design resolved, beginning reconstruction and framing plans had top priority

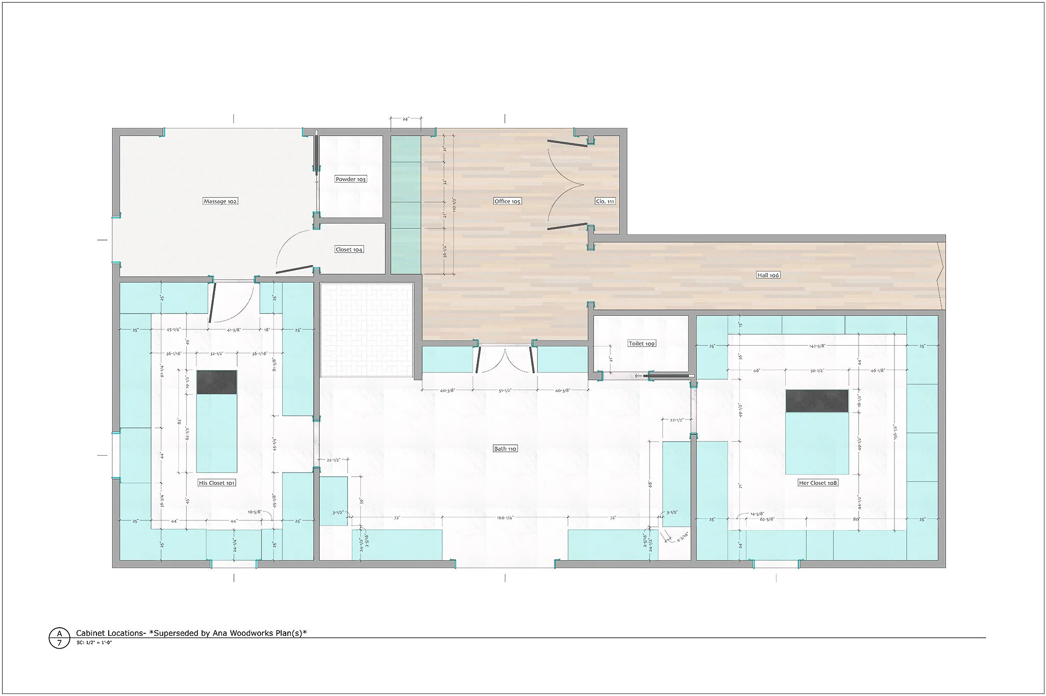
 Next, a plan supporting cabinet design with door casing locations and finished wall sizes

Next, a plan supporting cabinet design with door casing locations and finished wall sizes

 Details for framed openings in the new ceilings

Details for framed openings in the new ceilings

 Lighting plan with fixture types and locations

Lighting plan with fixture types and locations

 Circuits, switching, and how the lighting relates to cabinetry and other features

Circuits, switching, and how the lighting relates to cabinetry and other features

 Finalized cabinet box sizes

Finalized cabinet box sizes

 A few simple schedules

A few simple schedules

 Plan view of the beams required to support the ceiling dome and roof modifications

Plan view of the beams required to support the ceiling dome and roof modifications

 An overview of the “tight” dome installation and steel beam supporting the chandelier

An overview of the “tight” dome installation and steel beam supporting the chandelier

 A section view of the roof framing, dome, and ceiling beams

A section view of the roof framing, dome, and ceiling beams

 A similar section view along the opposite axis

A similar section view along the opposite axis

 Drawings accompanying the ceiling dome kit order

Drawings accompanying the ceiling dome kit order

 Five flexible molding options for trimming the ceiling dome opening

Five flexible molding options for trimming the ceiling dome opening

 Specifications and quantities of the selected option

Specifications and quantities of the selected option

 Specifications for the conventional crown moldings

Specifications for the conventional crown moldings